Appartamento duplex con vista e giardino a Castelfondo

135.000 €
90 m²
Superficie
4
Locali
2
Camere
2
Bagni
in vendita
4 o più locali
Borgo d'Anaunia
Descrizione
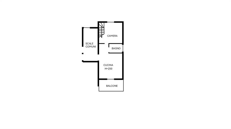
In alta Val di Non, nella caratteristica frazione di Castelfondo (Borgo d'Anaunia), proponiamo in vendita un appartamento su due livelli, ideale sia come prima casa che come residenza per le vacanze. Situato al primo piano di un piccolo complesso residenziale di sole 12 unità ottimamente mantenuto. L'immobile gode di un grande giardino condominiale attrezzato con tavoli e barbecue, perfetto per momenti di relax all’aria aperta.

L'appartamento è composto da:
-zona giorno con cucina a vista, giro panca in legno e accesso al terrazzino panoramico esposto a sud
-soggiorno accogliente
-bagno finestrato con vasca
-al piano superiore: grande open space attualmente adibito a stanza per gli ospiti (fino a 4 posti letto), bagno con doccia, e camera matrimoniale padronale

Completano la proprietà:
-stufa a pellet e termoconvettori per il riscaldamento
-cantina privata al piano interrato


📍Castelfondo è un gioiello dell’Alta Val di Non, a pochi minuti da Fondo e dal Passo della Mendola. Immerso nella natura e vicino a sentieri, malghe e panorami mozzafiato, è un luogo perfetto per chi cerca tranquillità, autenticità e aria pulita, ma anche ottimo investimento turistico, grazie alla doppia stagionalità estiva e invernale. La zona offre un mercato immobiliare liquido e in crescita, adatto anche per affitti brevi e ospitalità extralberghiera.

👉 Per maggiori informazioni o per organizzare una visita, contattaci subito!
📞 www.ctr-immobiliare.it | CTR Immobiliare - Il tuo punto di riferimento in Trentino







Caratteristiche principali
Codice:
V000063
Città:
Borgo d'Anaunia
Categoria:
4 o più locali
Locali:
4
Camere:
2
Bagni:
2
Mq:
90
Terrazzi:
1
Piano:
1
Classe energetica:
In fase di valutazione
Stato Immobile:
Buono
Grado:
Medio
Posizione:
Montagna
Panorama:
Vista Monti
Orientamento:
Nord Est Sud
Lati Liberi:
3
Giardino:
Comune
Arredi:
Arredato
Tipo Soggiorno:
Soggiorno
Tipo Cucina:
Abitabile
Riscaldamento:
Autonomo
Tipo Riscaldam.:
Ventilconvettore
Tipo Impianto:
Radiatori
Acqua Calda:
Autonoma
Raffrescamento:
Non Necessario
Infissi:
Legno Doppio Vetro
Serramenti:
Buono
Persiana:
Oscurante Legno
Pavim. Giorno:
Ceramica
Pavim. Cucina:
Ceramica
Pavim. Bagno:
Ceramica
Accessori
Camino
Canna fumaria
Doppi Vetri
Stufa a Pellet
Planimetrie
Video
Virtual tour
Mappa
Località Sentieri, 32 - Borgo d'Anaunia (TN)
QR Code
QR Code
Cookie preference