Due appartamenti con giardino a Mezzana

519.000 €
275 m²
Superficie
15
Locali
5
Camere
3
Bagni
2
Box
in vendita
villetta schiera
Mezzana
Descrizione
Nel cuore di Mezzana, una delle località più richieste della Val di Sole, proponiamo in vendita una proprietà composta da due appartamenti indipendenti, ideale sia come abitazione principale che come investimento turistico. Con la possibilità di vendita della singola unità.

Mezzana rappresenta uno dei principali poli turistici della valle grazie al collegamento diretto con il comprensorio sciistico di Marilleva – Folgarida – Madonna di Campiglio, garantendo un’elevata affluenza sia nella stagione invernale che estiva. La presenza di una forte doppia stagionalità rende questa soluzione particolarmente interessante anche dal punto di vista dell’investimento, con ottime prospettive di messa a reddito.

La proprietà si distingue per completezza e funzionalità:
- Due appartamenti indipendenti
- Posti auto esterni
- Garage coperto
- Cantina
- Giardino privato con ampia legnaia
- Pannelli solari termici per maggiore efficienza energetica

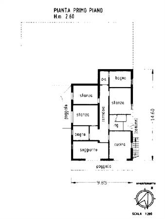
L’appartamento al primo piano si compone di:
- Cucina abitabile con grande balcone a L
- Soggiorno con accesso al balcone
- Tre camere da letto
- Due bagni


L’appartamento mansardato al secondo piano offre:
- Cucina abitabile
- Soggiorno molto luminoso con grandi serramenti scorrevoli a triplo vetro, nuovi
- Accesso diretto al balcone
- Due camere da letto
- Bagno

A questo livello (mansarda) è inoltre presente un ampio locale al grezzo, che offre interessanti possibilità di sviluppo:
- Realizzazione di un’ulteriore unità abitativa (monolocale a reddito)
- Ampliamento dell’appartamento esistente
- Creazione di zona relax, studio o taverna

Soluzione ideale per chi cerca una proprietà versatile in una delle zone più strategiche del Trentino, perfetta sia per uso privato che per investimento immobiliare con rendita.

Per maggiori informazioni o per fissare una visita:
CTR-Immobiliare – www.ctr-immobiliare.it
Caratteristiche principali
Codice:
V000125
Città:
Mezzana
Categoria:
Villetta schiera
Locali:
15
Camere:
5
Bagni:
3
Mq:
275
Box:
2
Mq Box:
37
Posti auto:
3
Balconi:
3
Classe energetica:
In fase di valutazione
Stato Immobile:
Ottimo
Grado:
Medio
Posizione:
Montagna
Panorama:
Vista Monti
Orientamento:
Sud Ovest
Lati Liberi:
2
Giardino:
Cortile
Arredi:
Arredato
Tipo Soggiorno:
Salone
Tipo Cucina:
A Vista
Riscaldamento:
Autonomo
Tipo Riscaldam.:
Caldaia
Tipo Impianto:
Radiatori
Fonte Energetica:
Gasolio
Acqua Calda:
Autonoma
Raffrescamento:
Non Necessario
Infissi:
Legno Doppio Vetro
Serramenti:
Ottimo
Persiana:
Oscurante Legno
Pavim. Giorno:
Ceramica
Pavim. Notte:
Linoleum
Pavim. Cucina:
Ceramica
Pavim. Bagno:
Ceramica
Accessori
Armadio a Muro
Canna fumaria
Doppio ingresso
Passaggio Automobilistico
Ripostiglio
Tripli Vetri
Planimetrie
Video
Mappa
Via di Marilleva, 8 - Mezzana (TN)
Distanze
Posizione
Centro100 m
Lago7,5 km
Impianto di risalita3,9 km
Parco pubblico75 m
Istruzione
Scuola materna550 m
Scuola elementare11 km
Scuola media11 km
Scuola superiore25,4 km
Mezzi di trasporto
Aeroporto75 km
Colonnina EV350 m
Fermata metro-bus-tram170 m
Stazione di servizio260 m
Stazione dei treni800 m
Altri servizi
Banca400 m
Centro culturale450 m
Chiesa400 m
Farmacia450 m
Ospedale25,6 km
Supermercato80 m
QR Code
QR Code
Cookie preference